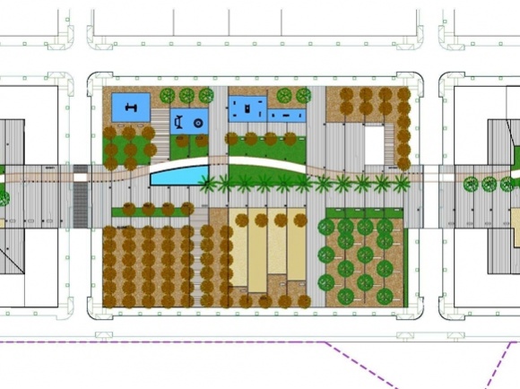
Tratamiento de espacios públicos interiores de manzana. El proyecto unifica mediante un importante y contundente tratamiento peatonal todos los interiores de carácter público de las manzanas residenciales que forman una secuencia lineal de casi un kilometro de longitud.
Este tratamiento peatonal se conforma con un paseo central de grandes dimensiones, sobre el que de manera secuenciada se van articulando las distintas zonas de uso.Zonas de juego para niños, zonas ajardinadas, zonas de ejercicio para personas mayores y con discapacidad, espacios de reunión, etc dan contenido a todas las zonas de esta gran actuación. Como complemento de este tratamiento se proyecta un carril bici que discurre en paralelo al paseo peatonal, define una traza orgánica y tranquila que se inserta y vá atravesando las diferentes zonas de uso.